Атрымаць RANA Кантэйнерны раствор высокай чысціні з футроўкай
Крок 1: адпраўце асноўныя патрабаванні да кантэйнера высокай чысціні
Кліенты павінны прадастаўляць асноўныя тэхнічныя параметры кантэйнераў высокай чысціні, падкрэсліваючы патрабаванні да чысціні і кантролю забруджвання:
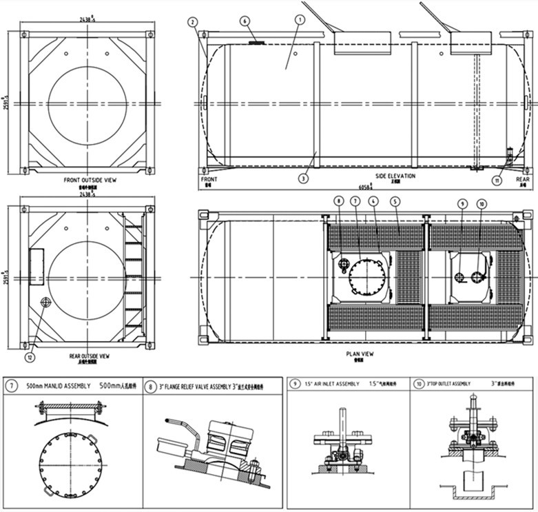
- Базавая канфігурацыя: тып, аб'ём, дыяметр, вышыня/даўжыня, таўшчыня сценкі і г.д.;
- Асяроддзе і чысціня: асяроддзе для захоўвання, узровень чысціні;
- Умовы эксплуатацыі: ціск, тэмпература і спецыяльныя экалагічныя патрабаванні;
- Апрацоўка паверхні і чысціня: апрацоўка ўнутранай паверхні, патрабаванні да кантролю забруджвання (напрыклад, колькасць часціц больш або роўна 0,5 мкм, утрыманне іёнаў металу менш або роўна 1ppb);
- Асаблівыя патрабаванні: указаныя сертыфікаты, спіс аксесуараў (пры наяўнасці).
Крок 2: Пацверджанне дадатковай інфармацыі
Каб адпавядаць сцэнарыям прымянення высокай чысціні, кліенты павінны дадаткова ўдакладніць:
- Падрабязнасці закупкі: меркаваная колькасць замовы, патрабаванні да часу дастаўкі;
- Тэхнічныя характарыстыкі матэрыялу: Матэрыял абалонкі, матэрыял дадатковай структуры;
- Вытворчыя стандарты: праектаванне, вытворчасць і стандарты якасці.
Крок 3: Распрацоўка індывідуальнага рашэння і пацверджанне
Каманда інжынераў высокай чысціні RANA распрацоўвае рашэнні:
- Эскізны праект: старэйшыя інжынеры выдаюць тэхнічныя рашэнні і падрабязныя чарцяжы САПР;
- Канчатковае пацверджанне: пасля разгляду і зацвярджэння кліентам падпішыце дакумент пацверджання праекту з указаннем тэхнічных параметраў, стандартаў якасці і крытэрыяў прыняцця.
Крок 4: Вытворчасць, пастаўка і пасля-продажнае абслугоўванне
Увесь працэс адпавядае спецыфікацыям вытворчасці высокай чысціні:
- Чыстая вытворчасць і кантроль якасці: зборка ў чыстых памяшканнях, прамыванне ўнутранай паверхні звышчыстай вадой; праверка чорным святлом на адсутнасць старонніх рэшткаў або флуарэсцэнтнага адлюстравання;
- Своечасовая-дастаўка: завяршыць вытворчасць у межах узгодненага перыяду і забяспечыць персаналізаваную лагістыку;
- Пасляпродажнае-абслугоўванне: інструкцыі па ўстаноўцы ў-чыстых памяшканнях, навучанне эксплуатацыі, кругласутачныя тэхнічныя кансультацыі і гарантыйная падтрымка.

